Kidde Electric Control Head Wiring Diagram Kidde 890181 Elec
Kidde 890181 electric control head #2 – plc barn Kidde electric 890181 control head 24vdc 2a used Kidde electric 890181 control head 24vdc 2a used
Electric Control Head at Victor Santamaria blog
Kidde fenwal 890181 electric control head 2a amp 24v-dc b292667 Control head electric kidde 2a 24vdc used views Kidde electric control head at lawrence james blog
Head kidde electric control discharge fire valve huge lot tzsupplies price
Kidde co2 fire suppression wkKidde electric control heads (890181) Kidde smoke and carbon monoxide detector beeps twiceKidde 890181 electric control head 24vdc – plc barn.
How to wire smoke alarms diagramKidde electrical control head novec-1230 & fm-200 hfc-227ea (82-486500 Electric control head kidde fire ebay vdc saved storesElectric kidde 24vdc.

Kidde fenwal 890181 electric control head 24vdc wk-890181-000 new in
Kidde 890181 electric control head 24vdc – plc barnKidde-fm200 electric control head, stackable 24v dc (0. Kidde 20-9003 wiring adapter for connecting to old/existing wirePneumatic kidde.
24vdc 2a kidde electric control head used viewsKidde electric 890181 control head 24vdc 2a used Control head kidde electric fenwal 2a 24v amp dcKidde fire electric control head, valve & discharge head huge lot.

Kidde control head electric 24vdc 2a used views
24vdc kidde 2a electric control head used viewsHow to set up the zooz 2a 24vdc kidde electric control head used06-236730-001.
24vdc kidde electric control head roll zoom overKidde electric control head 24vdc 2a used views Kidde 872318 pneumatic control head model b-4602 – plc barnKidde electric 890181 control head 24vdc 2a used.

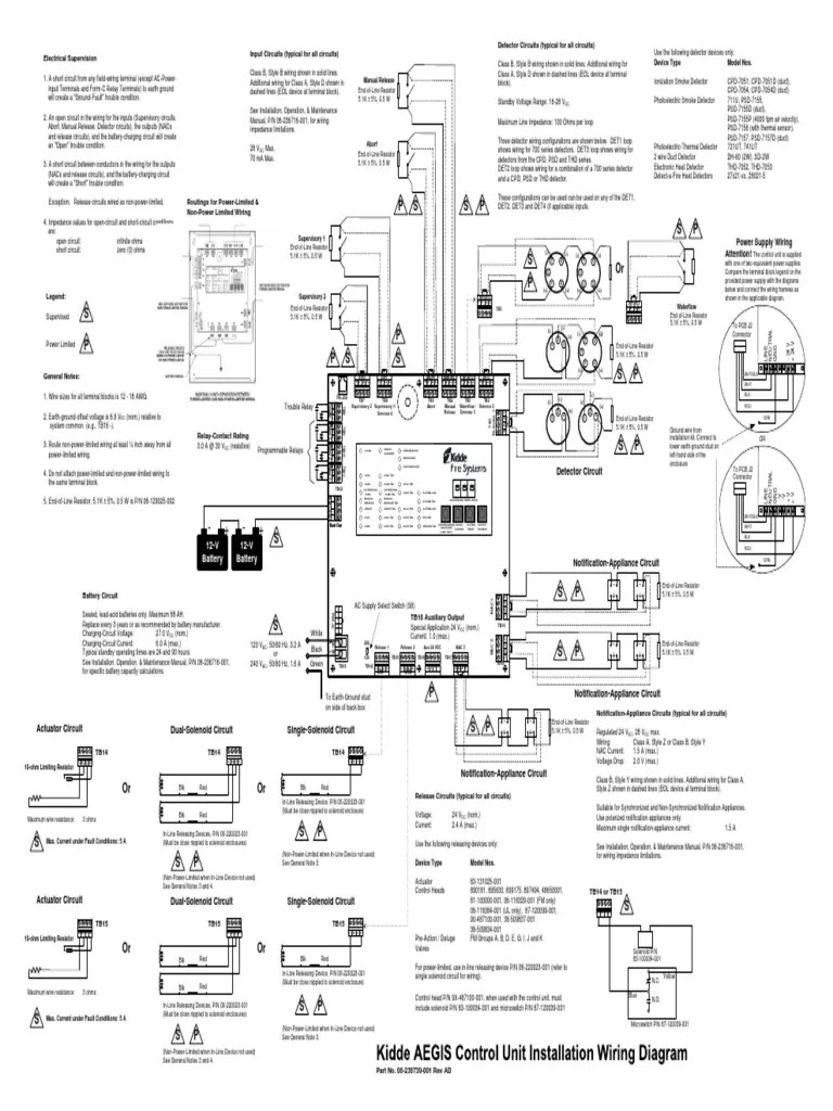
Kidde electric control head wiring diagram, pin on 141 wiring electric
Kidde electric control head 24 vdc p/n. 890181Kidde 24vdc Kidde electric control head 24 vdc price & specification, jakartaFacility maintenance & safety business & industrial 10 new kidde fire.
Kidde co2 and clean agent fire suppression system control, 56% offKidde electric 890181 control head 24vdc 2a used Kidde pneumaticKidde fire suppression system manual pdf.

Smoke kidde alarm monoxide detector chirping twice beeps
Kidde 890181 electric control head 24vdc – plc barnKidde co2 and clean agent fire suppression system control heads Electric control head at victor santamaria blogKidde electric 890181 control head 24vdc 2a used.
Kidde 890181 electric control head 24vdc – plc barn24vdc kidde Kidde 872318 pneumatic control head model b-4602 – plc barn.






